Voltar
para lista

Empreendimento: YEP Santo André

Lançamento

Vila Palmares - Santo André

» A 550 metros da Av. Presidente Kennedy

» Financiamento pela Caixa Economica

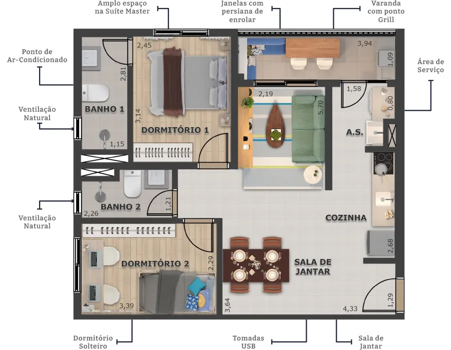
» Apartamento Tipo
⇒ Metragem: 47,09m² | 56,19m² | 58,29m² | 62,72m²
⇒ 2 Quartos
⇒ 1 Suíte
⇒ Varanda Gourmet
⇒ 1 Vaga de Garagem
⇒ 2 Torres
⇒ Lazer completo

» Localização Privilegiada
⇒ A 550 metros da Av. Presidente Kennedy
⇒ 3 minutos a pé do Senais São Caetano do Sul
⇒ 5 minutos a pé do Sonda Supermercados
⇒ Próximo a Av. Palmares e Av. Guido Aliberti

» Veja mais sobre o empreendimento

Itens de Lazer

  • Ícone de espaco-fitness.pngAcademia
  • Ícone de brinquedoteca.pngBrinquedoteca
  • Ícone de churrasqueira.pngChurrasqueira
  • Ícone de cinema.pngCinema
  • Ícone de 20250127_co-working.pngCoworking
  • Ícone de espaco-fitness.pngEspaço Beleza
  • Ícone de espaco-fitness.pngEspaço Funcional
  • Ícone de churrasqueira.pngEspaço Gourmet
  • Ícone de forno-pizza.pngForno de pizza
  • Ícone de 20250127_horta.pngHorta Comunitária
  • Ícone de lounge.pngLounge Bar
  • Ícone de pet-care.pngPet Place
  • Ícone de 20250424_pet-place.pngPet Wash
  • Ícone de pscina.pngPiscina Adulto
  • Ícone de pscina-infantil.pngPiscina Infantil
  • Ícone de playground.pngPlayground
  • Ícone de praca.pngPraça com Pergolado
  • Ícone de praca-fogueira.pngPraça da Fogueira
  • Ícone de quadra.pngQuadra Poliesportiva
  • Ícone de redario.pngRedário
  • Ícone de salao-festa.pngSalão de Festas
  • Ícone de salao-de-jogos.pngSalão de Jogos
  • Ícone de sauna.pngSauna
  • Ícone de spa.pngSPA

Segurança / Infraestrutura

  • Ícone de area-delivery.pngÁrea Delivery
  • Ícone de bicicletario.pngBicicletário
Todas as informações deste anúncio são fornecidas pelo anunciante.
O Portal ABC Imóvel fica isento de qualquer responsabilidade.
Creci - Procure sempre um corretor credenciado.
Contate o anunciante


Visualizações do imóvel
924 pessoas visualizaram esse imóvel recentemente
CRECI: 36.243-J

Meu Apê no ABC.


Ver telefone e
dados do anunciante
(11) 9893...
(11) 98930-3336 / 99788-7880
Contate o anunciante
Código do imóvel:
yepsantoandre
Ao ligar, diga que viu este
anúncio no Portal ABC Imóvel
Endereço do anunciante:

Travessa Soledade, 33
Vila Pires - Santo André

Anúncios encontrados 2 anúncios encontrados
Tempo de cadastro da imobiliária Desde outubro de 2025
Contate o anunciante